Construcción Rápida para tu proyecto

Casas de Madera & Diseños Modernos.

Construcción de Madera en Calamuchita

Nos encanta construir con Madera. Trabajamos en el Valle de Calamuchita con modalidad de entrega en Obra Gris. Contáctanos si te interesa la construcción rápida, sostenible y accesible.

Tu proyecto, nuestra pasión

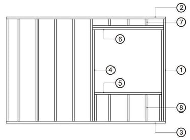
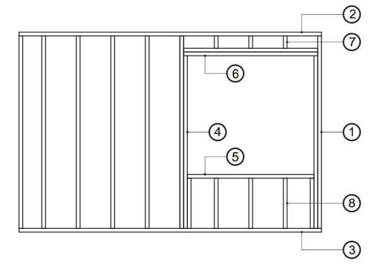
1. Pie Derecho 2.Solera Superior 3. Solera Inferior 4. Jamba 5. Alféizer 6. Dintel 7.Puntal de DINTEL 8. Muchacho

Preguntas Frecuentes

Se puede construir en 2 pisos?

Sí, se pueden construir en 2 pisos y anexar terrazas semicubiertas con deck de madera, estos aleros te permiten proteger aún más las estructuras de la lluvia y el sol, además de disponer de mejor acceso a ventanales para hacer mantenimientos, aprovechar al maximo las vistas y conservas más m2 de verde.

Toda la casa es de madera?

En un 90% la casa es de madera, a excepción de la chapa para el techo, las membranas aislantes y el revestimiento final exterior, en su mayoría utilizamos perfiles de madera para las estructuras Y placas de madera OSB para lograr mayor resistencia estructural según Norma Cirsoc 601. La madera tiene triple impacto: resistencia, sostenibilidad y versatilidad.

Cómo se entregan las casas?

Para los proyectos de Obra Nueva, la modalidad de entrega es OBRA GRIS, esto incluye: 1)Techo Completo con Tirantería de Madera a la vista, con Chapa, Aislante y Cielorraso 2) Muros Exteriores con Estructura de Madera con Membrana de Viento y Placa de Rigidización. 3) Muros Interiores sólo Estructura de Madera.

Por qué Obra Gris?

El objetivo de nuestra modalidad de entrega es que logres en tiempo record tener la primera etapa concluida, en menos tiempo y con menor complicaciones, para avanzar posteriormente con cableados, aislación termo-acústica, revestimientos finales interiores y conexión de artefactos.

Puedo agregar más items para mi proyecto?

Otros Items que podés agregar o coordinar con otro equipo de construcción o profesional: 1) Platea en Húmedo o Platea en Seco 2) Preintalaciones de agua, cloacas y electricidad. 3) Emplacado Interior.